【黃石】揚子玉龍灣
更新時間:2019-03-27
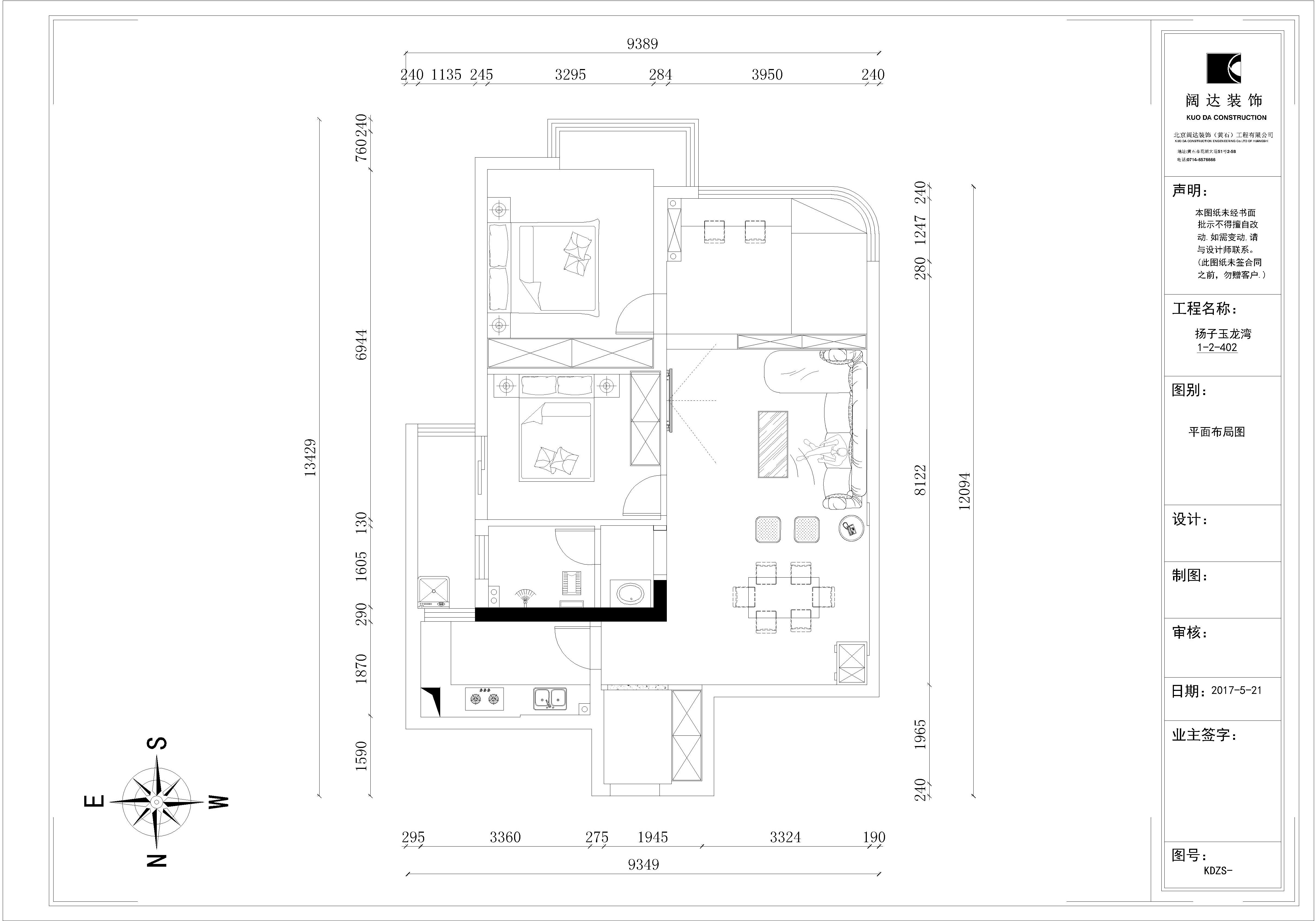
| 設計風格 | 現代簡約 | 戶型案例 | 三室兩廳一廚一衛 | 案例面積 | 97 |
|---|---|---|---|---|---|
| 樓盤名稱 | 揚子玉龍灣 | 所在城市 | 黃石市 | 案例造價 | 11萬 |
| 設計師 | 向文龍 | ||||

案例說明:
業主是一對40歲左右的夫妻,有一個小孩。考慮到父母有時候要過來偶住,所以將客廳陽臺擴大,改成一個開放式書房,設計了榻榻米,可用隱藏式簾子隔開,兼具了睡眠功能。風格上選擇了現代風格,簡單大方,配色上用淺色,提亮客餐廳的光線。
同風格案例:更多>>
同面積案例:












京公網安備 11010802032436號