【功能改造】洵美
更新時間:2022-11-25
| 設計風格 | 戶型案例 | 三室兩廳一廚兩衛 | 案例面積 | 104㎡ | |
|---|---|---|---|---|---|
| 樓盤名稱 | 所在城市 | 江蘇-丹陽 | 案例造價 | ||
| 設計師 | 龔理 | ||||

案例說明:
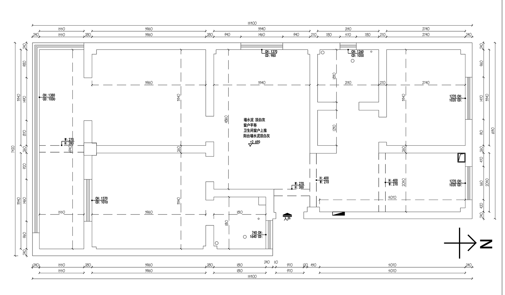
本案屬于商住一體的老小區,建筑面積104平米,三室二廳一廚兩衛的原始格局。本案戶型缺陷:
1、由于南側兩臥室門開啟位置的原因,造成了客廳使用面積的壓縮,影響電視背景設計,使用受限,體驗感差
2、衛生間干濕分離中規中矩,公衛設計略小
3、餐廳區域與廚房比例失調
4、北臥室門直對柜鏡
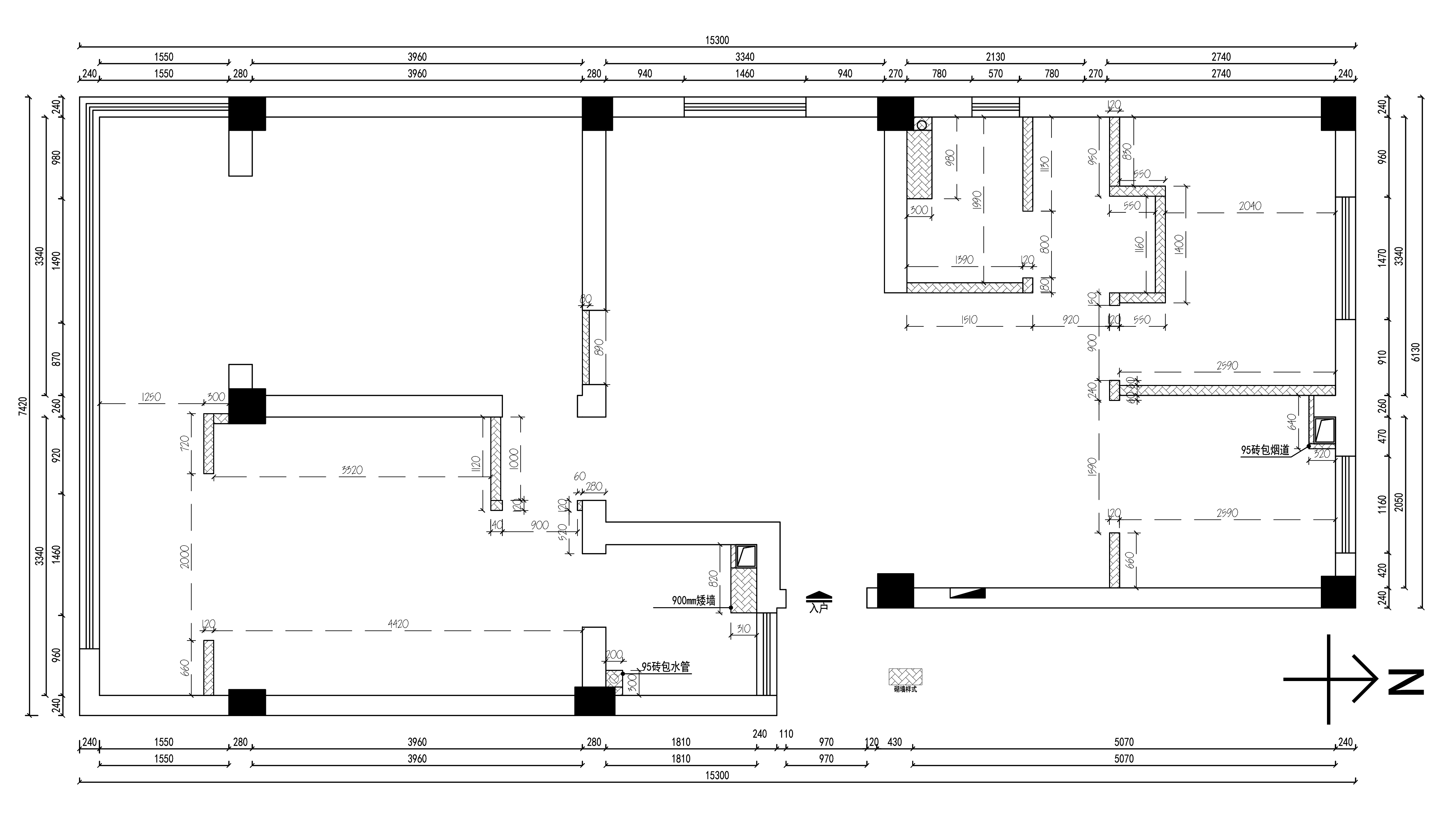
針對以上缺陷,設計師在功能分區時進行了如下調整:
1、改變南側兩臥室的進門方向,在原西南側臥室門的位置新砌墻體,延長客廳墻面,增加客廳利用率
2、縮小北側臥室的面積,最大化公衛使用
3、將北側臥室與廚房的墻,整體向內移動,與擴大后衛生間門墻對齊
4、拆除北側臥室正對的墻體(干區墻體)
綜合以上調整結合業主需求,設計師又將陽臺墻體拆除換成移門,整體基調簡約為主,餐廳采用弧形頂設計,輔以線性燈照明,既適當放大層高,又烘托了就餐氛圍。
通過改變臥室門方向,延長了客廳墻面,正好將沙發由南朝北放置于此,對面電視背景做懸空處理,將光線引入餐廳,整個區域采光、動線和比例較為適宜。
拆除北側臥室正對的干區墻體,縮小廚房與北臥室,放大餐廳區域,配置餐邊柜鞋柜,形成環形動線。
公衛改變進門方向,依然采用干濕分離方案。
本案經過設計師的巧妙構思,提高了舒適度及空間利用率。
同風格案例:更多>>
同面積案例:

















京公網安備 11010802032436號